中文en

T&W Office

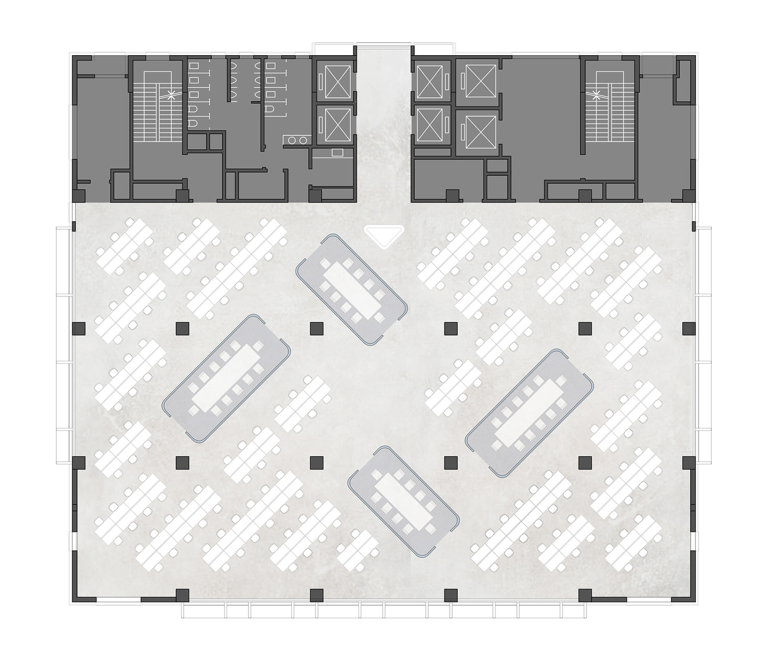
The design is composed of a five-floor open space office area and a two-floor administration office area. The original building plan adopted a regular column network layout, simple and economical. The single-story building area is about 1400 square meters. The interior design scheme layered a 45° spatial structure on the original 90° building plane. The oblique spatial streamline has a dialogue with the original architectural structure, forming a rich visual relationship and adding interest to the spatial experience.

In the interior design, circular arc corner modeling is adopted to enhance the flow and kind of the open office area. The transparent conference room presents the open and democratic working atmosphere of the young technology enterprise. The embedded personal space scheme of the researching stations ensures that each researcher has a relatively private and independent office environment even in a large open space. The administrative office area is located on the top floor of the building, and various offices and meeting rooms are arranged around the lighting atrium in the center, forming a quiet and introverted order.

  • Location: Shenzhen, China
  • Area: 10000 m²
  • Year: 2019
  • Client: T&W Electronics Co., Ltd.
  • Architect: xup Architekten
  • Team: Shan Xu, Jing Xue, Di Tang, Xinxin Ji, Wanlin Qu,Qingyi Lin
  • Type: interior design