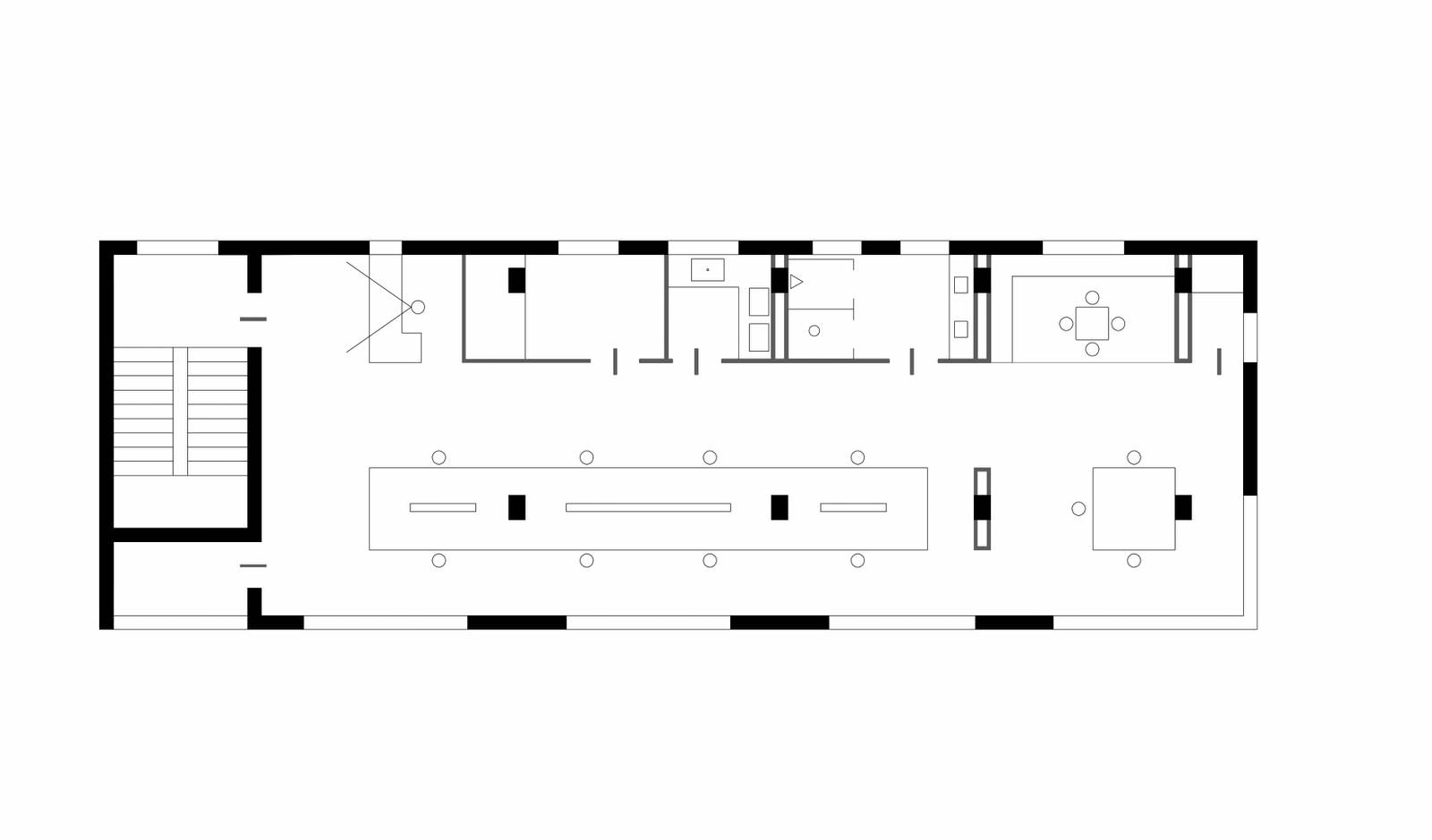
The client employs 6 staffs in Yueqing and rents a floor of 120m² for his branch office. The house had a frame construction whose column distance was small and irregular, while the space below the beams was low. The whole office was ca. 18m long and ca. 6.5m wide, forming a longish space.
All separation walls were removed so that a large centralized office area came into being. This ca. 70m² large open office area is arranged along southern side of the building whilst a longish ‘black box’ is located along the northern side, in which copy, storage, tea pantry and washrooms are allocated. The eastern and western sides are relatively short. An office front desk is arranged on the former whereas a meeting room is located on the end of the latter. The open office area of 70m² plays an absolutely main role in the space: the whole team works together on a huge working desk spreading along the columns. Together with the beam above, the column in the middle of the table again underlines the centrality of this space. There are no suspended ceilings in the room, so that the exposed beams and columns compose interesting ‘space sculptures’.